JURMALA, LATVIA 2017
The Multifuntional Nature Tourism Center in Kemeri aims to be a synthesis of the ancestral relationship of the Latvians with the nature of its territory, which still remains in a time of massive urbanization of world population. A building that seeks to relate the iconography of vernacular architecture with the most advanced technology, through an assiduously contemporary design that allows a continuity reading of the history, without ruptures.
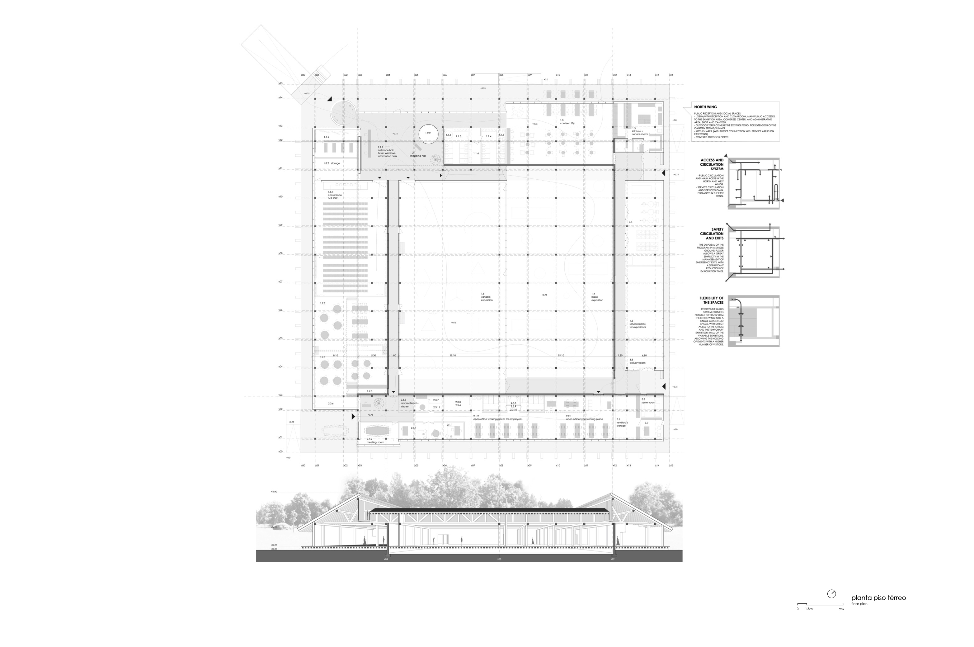
The wooden structure, punctuated by columns, anchors and beams, designing hypostyle rooms as in an ancient temple, builds a kind of new forest inside, underlining the importance of the true forest that is around it. The building also aims to overcome preconceived ideas about vernacular architecture as the only truly sustainable, and modern construction as necessarily polluting, and that technological progress always has to be done at the expense of abandoning the values of the past. The resonance of form with traditional Latvian architecture, such as a simple wooden house raised to an institutional architecture, is intended to suggest the idea of a public building as an open house, inviting a wider spectrum of visitors to participate and experience the sharing of information it offers.
The sloping roof, the raised floor, and the materials used in the construction, suggest a familiarity with the place, despite the transformation that architecture always invokes.
