JURMALA, LATVIA 2012-
The coast of Jurmala is full of fascinating constructions, like the former restaurant ‘Juras Perle’, the Baltic Beach Hotel, cantilevered over the beach and horizon, or even the Dubulti station, with its impressive canopy and Art Nouveau constructions implanted right on the beach.
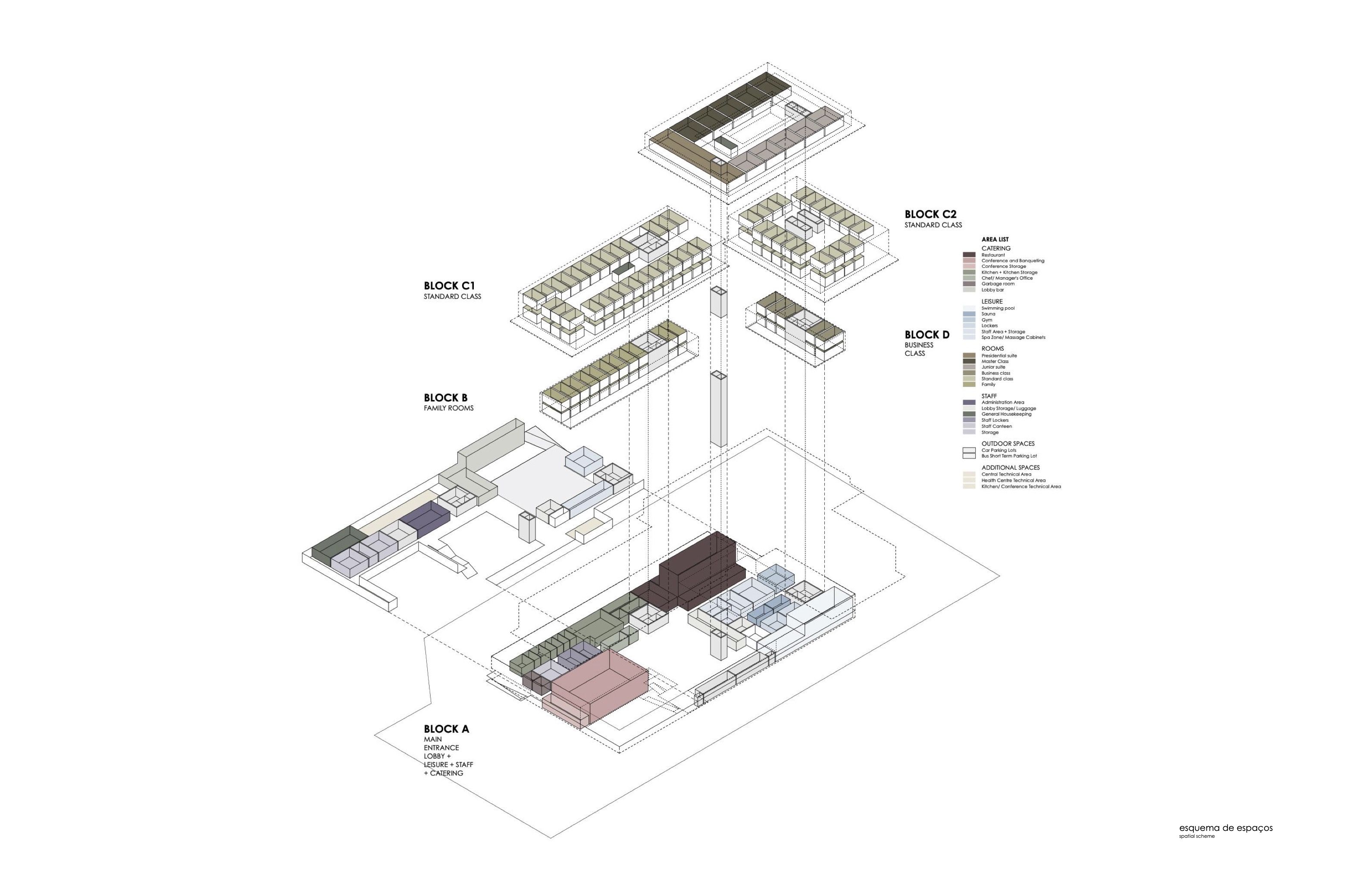
The project of the hotel recovers the concept of old ‘estrãdês’, simple outdoor structures formed by a stage with an acoustic shell and a flat audience, in front.
Despite the existance of various concert halls in Jurmala and Riga, the outdoor events continue to be a tradition strongly rooted in the local culture.
The organizational scheme proposed is, in a way, opposite to the traditional hotel scheme, like the pre-existing building, which is normally based on the disposition of a horizontal block housing the public spaces and areas of greater dimension, opposed to a vertical block which organizes the rooms, in a hierachical form.
