ÉVORA, PORTUGAL 2004-2005
In a former wool warehouse built in the ‘Estado Novo’ period it was proposed the temporary installation of a small business headquarters. Clients had foreseen the installation of a typical office, with suspended ceilings and aluminium partition walls, air conditioning and all the other props that draw an office with no history.
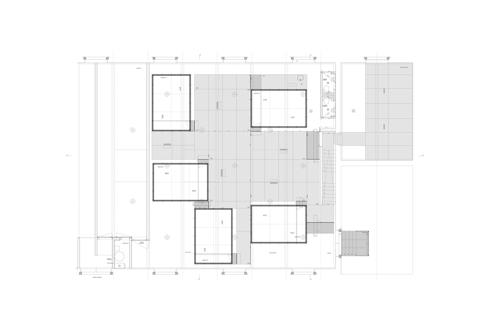
The project’s main argument, seemed to us, however, to reside precisely in the way it could conciliate the logic of the warehouse’s long nave with the office program, with open-space areas, closed offices and meeting rooms.
We proposed, quite simply, to install wooden boxes opened at the top, each containing an office, arranged so as to create a central open space with the secretary areas and boundary areas with the walls of the warehouse where the remaining program was set.
In between these huge ‘packages’ was mounted an elevated pavement in anti-slip plywood, usually used in the trucks’ semi-trailers. Under this platform remain all the technical infrastructures, including a diesel industrial heating system and mouldings for indirect lighting that reflects on the light wood of the boxes creating a comfortable environment.
The existing airways in the roofing were opened in order to allow the entrance of natural light, diffused, that complements the light entering through the side windows.
An existing space above the entrance’s outside gallery allowed to wedge in the meeting room, which is accessed by an existing staircase. In the upper level, an opening allows one to peek into the work nave, like bosses used to control their employees down there, as in Jacques Tati’s film.
